Jest to sporządzenie lub zaktualizowanie dokumentacji dotyczącej obiektu budowlanego. Inwentaryzacje architektoniczno - budowlane przeprowadza się dla każdego rodzaju budynku (domy mieszkalne, obiekty użyteczności publicznej, budowle zabytkowe, sakralne, części budynków – lokale mieszkalne, użytkowe).

     Inwentaryzacja architektoniczno - budowlana wymagana jest wszędzie tam gdzie planowana jest przebudowa istniejącego obiektu. Dzięki wykorzystaniu skaningu laserowego 3D lub zależnie od potrzeb tradycyjnych metod pomiaru (tachimetry bezlustrowe, niwelatory, dalmierze ręczne) oraz metod fotogrametrycznych (fotogrametria naziemna i lotnicza) jesteśmy w stanie sprostać każdemu zadaniu i dostosować metodę do budżetu oraz wymagań zamawiającego. Gwarantujemy pełen profesjonalizm zarówno podczas pomiaru jak i opracowania. Stosując wiedzę i sprzęt typowo geodezyjny nigdy nie musimy ani nie zakładamy kątów prostych czy równych ścian - zawsze bazujemy na precyzyjnym pomiarze i przedstawiamy obiekty takimi jakie są w rzeczywistości.   

INWENTARYZACJA BUDOWLANA

Dokumentacja techniczna budynku wykonana na podstawie pomiaru skanerem laserowym 3D.

Więcej

INWENTARYZACJA ELEWACJI

Rzuty płaskie elewacji wykonane na podstawie pomiarów skanerem laserowym oraz na bazie danych fotogrametrycznych.

Więcej

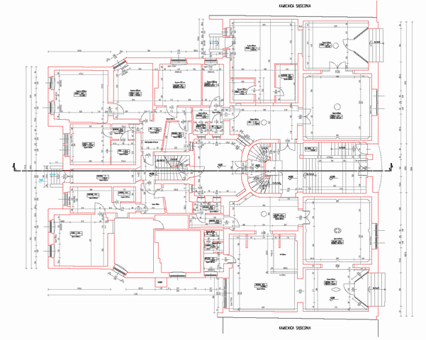
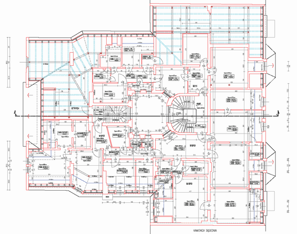
INWENTARYZACJA KAMIENICY POZNAŃ

Inwentaryzacja budowlana kamienicy w centrum Poznania.

Więcej

  Inwentaryzacja architektoniczno-budowlana wymagana jest w następujących przypadkach:

- remont, przebudowa czy nadbudowa budynku

- wymiana konstrukcji dachu

- powiększenie lub wybicie nowych otworów okiennych

-ocena stanu technicznego

- wydzielenie osobnych ksiąg wieczystych dla poszczególnych lokali mieszkaniowych oraz użytkowych

- przy określaniu powierzchni objętej podatkiem od nieruchomości

     Etapy realizacji zlecenia:

  1. przyjęcie zlecenia (zarejestrowanie nowego zlecenia zawierające: dane zleceniodawcy, informacje o obiekcie oraz zakres prac do realizacji)
  2. przekazanie przez zleceniodawcę wszystkich zachowanych dokumentów dotyczących budynku
  3. ustalenie terminu pomiaru oraz poinformowanie mieszkańców bądź użytkowników o planowanych pracach na obiekcie
  4. wykonanie prac pomiarowych w oparciu o przeanalizowane dokumenty
  5. sporządzenie stosownej dokumentacji zgodnie z zakresem uzgodnionym podczas składnia zamówienia

     Termin realizacji zależy głównie od wielkości obiektu będącego przedmiotem opracowania oraz szczegółowych wymagań zleceniodawcy.

KONTAKT

Zachęcamy do przesłania zapytania, przygotujemy dla państwa indywidualną ofertę.

Ta strona używa ciasteczek (cookies), dzięki którym nasz serwis może działać lepiej.